nowa oferta
mieszkanie na sprzedaż - Warszawa, Praga-Południe, Saska Kępa

Warszawa, Praga-Południe, Saska Kępa
mieszkanie na sprzedaż

ARD-MS-48231

Do sprzedaży mieszkanie przy rondzie Waszyngtona. Lokal składa się z salonu z balkonem, osobnej kuchni, sypialni oraz przedpokoju. Bezpośrednie sąsiedztwo kultowej ul. Francuskiej będącej sercem Saskiej Kępy. Dodatkowym atutem jest bezpośrednia bliskość Parku Skaryszewskiego. ...

Powierzchnia
54,00 m2
Piętro
parter
Pokoje
2 pokoje
Cena za m2
16 648,15 zł
cena 899 000
mieszkanie na sprzedaż - Warszawa, Praga-Południe, Saska Kępa
nowa oferta
mieszkanie na sprzedaż - Warszawa, Praga-Południe, Grochów, al. Jerzego Waszyngtona

Warszawa, Praga-Południe, Grochów, al. Jerzego Waszyngtona
mieszkanie na sprzedaż

ARD-MS-48230

Mieszkanie w bardzo dobrej lokalizacji Grochowa- tuz obok Rondo Wiatraczna i bardzo dobra komunikacja. Okna przy tym wychodzą na ogródek i malutką uliczkę Kirasjerów.  Wygoda i funkcjonalność: Mieszkanie, mimo że niewielkie, składa się z osobnej sypialni i salonu ...

Powierzchnia
28,00 m2
Piętro
wysoki parter
Pokoje
2 pokoje
Cena za m2
18 928,57 zł
cena 530 000
mieszkanie na sprzedaż - Warszawa, Praga-Południe, Grochów, al. Jerzego Waszyngtona
nowa oferta
mieszkanie na sprzedaż - Warszawa, Praga-Południe, Kirasjerów

Warszawa, Praga-Południe, Kirasjerów
mieszkanie na sprzedaż

ARD-MS-48227

IDEALNIE CICHE!  Mieszkanie znajduje się doskonałej lokalizacji w pobliżu Ronda Wiatraczna. Nieopodal planowanej stacji metra. Pomimo bliskości przystanków tramwajowych oraz autobusowych, mieszkanie jest bardzo ciche, wszystkie okna wychodzą na kameralna uliczkę ...

Powierzchnia
34,00 m2
Piętro
wysoki parter
Pokoje
1 pokój
Cena za m2
16 911,76 zł
cena 575 000
mieszkanie na sprzedaż - Warszawa, Praga-Południe, Kirasjerów
nowa oferta
mieszkanie na sprzedaż - Warszawa, Włochy

Warszawa, Włochy
mieszkanie na sprzedaż

ARD-MS-48226

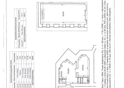
Do sprzedaży, wygodne, przestronne mieszkanie położone we Włochach. Lokal przearanżowany w stosunku do pierwotnego układu. Aktualne rozmieszczenie poszczególnych pomieszczeń obrazuje rzut architektoniczny, złączny do oferty. Dużym atutem jest kameralny budynek w którym ...

Powierzchnia
116,50 m2
Piętro
1
Pokoje
4 pokoje
Cena za m2
12 703,86 zł
cena 1 480 000
mieszkanie na sprzedaż - Warszawa, Włochy
nowa oferta
mieszkanie na sprzedaż - Warszawa, Praga-Południe, Saska Kępa

Warszawa, Praga-Południe, Saska Kępa
mieszkanie na sprzedaż

ARD-MS-48225

Do sprzedaży mieszkanie przy rondzie Waszyngtona. Lokal składa się z salonu z balkonem, osobnej kuchni, sypialni oraz przedpokoju. Bezpośrednie sąsiedztwo kultowej ul. Francuskiej będącej sercem Saskiej Kępy. Dodatkowym atutem jest bezpośrednia bliskość Parku Skaryszewskiego. ...

Powierzchnia
54,00 m2
Piętro
parter
Pokoje
2 pokoje
Cena za m2
16 648,15 zł
cena 899 000
mieszkanie na sprzedaż - Warszawa, Praga-Południe, Saska Kępa

Serock
dom na sprzedaż

ARD-DS-48213

Do sprzedaży dom z 2003 roku o powierzchni 70 m2, składający się: z salonu z kuchnią, dwu sypialni, łazienki oraz przedpokoju. Dużym atutem jest możliwością adaptacji poddasza o, tym samym metrażu. Dodatkowo, obok domu znajduje się przestronny, wolnostojący garaż. Bardzo ...

Powierzchnia
70,00 m2
Powierzchnia działki [m2]
2 000 m²
Cena za m2
12 714,29 zł
cena 890 000
dom na sprzedaż - Serock
Kryteria wyszukiwania

Ta strona wykorzystuje pliki cookies w celach statystycznych oraz w celu dostosowania naszych serwisów do indywidualnych potrzeb klientów. Zmiany ustawień dotyczących plików cookie można dokonać w dowolnej chwili modyfikując ustawienia przeglądarki. Korzystanie z tej strony bez zmian ustawień dotyczących cookies oznacza, że będą one zapisane w pamięci urządzenia.

rozumiem